ZUR PRODUKTÜBERSICHT

Modell Focus

Focus

Komfort- keine Frage von Quadratmetern. Bad-Grundrisse werden zunehmend kleiner. Ob im gewerblichen oder privaten Bereich - überall wird die Forderung nach größtmöglichem Komfort auf kleinstem Raum laut. Im Blickpunkt stehen Hotelbäder mit kleinen, oftmals verwinkelten Grundrissen sowie Verwaltungstoiletten.
Die integrierte Seifenablage hat eine Wasserführung in das Becken. Seitliche Positionierung der Armatur ermöglicht ermöglicht den größtmöglichen Waschkomfort selbst auf kleinstem Raum.
Das Waschtisch-Programm Focus bietet hier attraktive Problemlösungen.

  • Die angeformte Rückwand ermöglicht eine problemlose Stockdschrauben-Montage
  • FOCUS ist kompatibel zu Waschtisch und WC-Vorwandinstallationen
  • Die Möbelkante erlaubt den Anschluß von Verkleidungen oder Badmöbeln.
  • FOCUS ist auch als Eck-Version erhältlich - auf Wunsch auch mit zusätzlichen Ablageflächen links oder rechts.
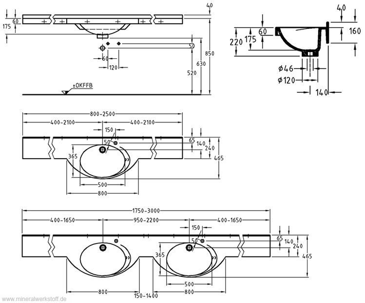
Technische Zeichnung Focus

Mindestmaß 800 mm für Einzel-Waschtisch bzw. 1750 mm für Doppelwaschtisch

Preis:
Brutto-Richtpreis von 510,00 bis 1.140,00 € zuzügl. Mwst. für den Einzel-Waschtisch
Brutto-Richtpreis von 1.132,00 bis 2.400,00 € zuzügl. Mwst. für den Doppel-Waschtisch


Ausschreibungstext Focus
Einzel-/Doppel-/X-Fach-Waschtisch aus polymer-gebundenem Mineral-Massivwerkstoff VARICOR, homogenes, voll durchgefärbtes, porenloses Material, ohne Oberflächenversiegelung, reparabel,CE-zertifiziert³ und antibakteriell², beständig gegenüber allen gebräuchlichen Chemikalien und Desinfektionsmitteln¹, säurebeständig und hitzebeständig gegen Zigarettenglut, matt geschliffen, in einem Stück nach Maß gegossen, bauseits bearbeitbar, Beckenform oval-asymmetrisch, mit seitlichem Überlauf, mit Lochbohrung für Einlochbatterie, Innenmaß 500 x 365 mm, vordere Abkantung 60 mm, angeformte Wischleiste mit Hohlkehle, Höhe 40 mm.

Fabrikat: KERAMAG

Modell: FOCUS

Länge: Mindestmaß 800 mm für Einzel-Waschtisch bzw. 1750 mm für Doppelwaschtisch (gem. baulichen Erfordernissen)

Tiefe: 465/240 mm

Befestigung:Stockschrauben bzw.Wandauflagewinkel bei Nischeneinbau

Farbe: (bitte Farbnamen angeben PDF Farbtabelle)


Technische Zeichungen als Download: Laden Sie sich die Zeichnung als DXF oder DWG herunter


1) Desinfektionsmittelbeständigkeit:
Labortechnische Untersuchungen haben ergeben, dass VARICOR gegenüber allen gebräuchlichen Desinfektionsmitteln zur Flächen- bzw. Händedesinfektion beständig ist (aktuelle  Liste der Desinfektionsmittel-Kommission des VAH - Verbund für angewandte Hygiene e.V.)

2) Antibakteriell:
VARICOR bewirkt bei den Standard-Weißtönen eine Keimreduktion von 99,9%. Gemäß der Norm JIS-Z gilt dieses Resultat als antibakteriell.

3) CE-Zertifiziert:
VARICOR-Sanitärbecken sind CE zertifiziert und entsprechend gekennzeichnet. Ein Prüfkriterium dafür ist der Wechselwassertest von 70°C/15°C bei tausend Zyklen. Die in ihrer Beschaffenheit identischen Küchenbecken bewältigen diesen Test sogar mit 90°C/15°C ohne jede Beanstandung.
Ein weiteres Prüfkriterium ist die Reinigungsfreundlichkeit: Die Waschbecken müssen eine glatte und leicht zu reinigende Oberfläche aufweisen, die frei von scharfen Innenecken ist.

Varicor Tafelware weiß mit Materialstärke 12 mm entspricht den Vorgaben der DIN 4102-B1 Schwerentflammbarkeit und verfügt über ein offizielles  "Allgemeines bauaufsichtliches Prüfzeugnis".


ZUR PRODUKTÜBERSICHT

Pollecker Finoflex GmbH
Daniel-Eckhardt-Str. 42 | 45356 Essen | Tel: 0201 - 8 33 86 20 | Fax: 0201 - 8 34 53 20 | info@mineralwerkstoff.de

 

Varicor Logo
Pollecker Finoflex GmbH
Tel: 0201 - 8 33 86 20
Fax: 0201 - 8 34 53 20
E-Mail:info@mineralwerkstoff.de