ZUR PRODUKTÜBERSICHT

Modell Trigo

Jerico

Der maßvariable Waschtisch TRIGO erfüllt den Anspruch an eine kompromisslose, klare Formensprache. Prägnante Übergänge münden in eine in die Beckenform integrierte „Wasserablaufrinne“. Diese ist nach unten abgesetzt und entzieht sich so optisch dem Blickfeld. Dennoch bleibt sie frei zugänglich, wodurch keine aufwendige Revisionierung durch Demontage von Teilen erforderlich ist. Der Ablauf wurde in einer Form umgesetzt, die den Anschluss eines handelsüblichen, normgerechten Siphons zulässt.
Unterfahrbar bei Einhaltung der Montagehöhe.

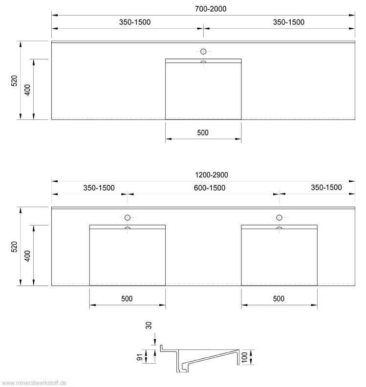
Technische Zeichnung Jerico

Mindestmaß 700 mm für Einzel-Waschtisch bzw. 1200 mm für Doppelwaschtisch

Preis:
Brutto-Richtpreis von 460,00 bis 1.260,00 € zuzügl. Mwst. für den Einzel-Waschtisch.
Brutto-Richtpreis von 1.032,00 bis 2.650,00 € zuzügl. Mwst. für den Doppel-Waschtisch.

Ausschreibungstext Trigo
Einzel/Doppel/X-Fach-Waschtisch, barrierefrei gemäß DIN Vorgabe, aus polymer-gebundenem Mineral-Massivwerkstoff VARICOR, homogenes, voll durchgefärbtes, porenloses Material, ohne Oberflächenversiegelung, reparabel, CE-zertifiziert³ und antibakteriell², beständig gegenüber allen gebräuchlichen Chemikalien und Desinfektionsmitteln¹, säurebeständig und hitzebeständig gegen Zigarettenglut, matt geschliffen, in einem Stück nach Maß gegossen, bauseits bearbeitbar, mit rechteckigem Becken, Innenmaß 500x400mm. Einzelwaschtisch in einem Stück nach Maß gegossen, Mehrfachwaschtisch aus mehreren Einzelwaschtischen fugenlos miteinander verklebt und fertig konfektioniert, mit seitlichen Ablageflächen,
bauseits bearbeitbar, Beckenform eckig, integrierte„Wasserablaufrinne“, ohne Überlauf, mit Lochbohrung für Einlochbatterie, mit angeformter Wischleiste mit Hohlkehle, mit angeformter Frontblende. TRIGO entspricht der CE-Kennzeichnung nach DIN EN 14688.

Fabrikat: KERAMAG

Modell: TRIGO

Beckeninnenmaß: 500 x 400 mm

Tiefe: 520 mm

Frontblende: H = 100 mm

Wischleiste mit Hohlkehle: H = 30 mm

Länge Einzelwaschtisch: 700 – 2000 mm

Länge Mehrfachwaschtisch: ab 1200 mm

Zubehör: Ablaufverbindung für TRIGO (im Lieferumfang enthalten)

Befestigung: Winkelkonsolen, bei Nischeneinbau zusätzlich Wandauflagewinkel

Farbe: (bitte Farbnamen angeben PDF Farbtabelle)


Technische Zeichungen als Download: Laden Sie sich die Zeichnung als DXF oder DWG herunter


Trigo Detail
Trigo Doppelwaschtsich mit Seifenspenderbohrungen
Trigo Doppelwaschtisch
Trigo Doppelwaschtisch
Trigo Doppelwaschtisch
Trigo Doppelwaschtisch

1) Desinfektionsmittelbeständigkeit:
Labortechnische Untersuchungen haben ergeben, dass VARICOR gegenüber allen gebräuchlichen Desinfektionsmitteln zur Flächen- bzw. Händedesinfektion beständig ist (aktuelle  Liste der Desinfektionsmittel-Kommission des VAH - Verbund für angewandte Hygiene e.V.)

2) Antibakteriell:
VARICOR bewirkt bei den Standard-Weißtönen eine Keimreduktion von 99,9%. Gemäß der Norm JIS-Z gilt dieses Resultat als antibakteriell.

3) CE-Zertifiziert:
VARICOR-Sanitärbecken sind CE zertifiziert und entsprechend gekennzeichnet. Ein Prüfkriterium dafür ist der Wechselwassertest von 70°C/15°C bei tausend Zyklen. Die in ihrer Beschaffenheit identischen Küchenbecken bewältigen diesen Test sogar mit 90°C/15°C ohne jede Beanstandung.
Ein weiteres Prüfkriterium ist die Reinigungsfreundlichkeit: Die Waschbecken müssen eine glatte und leicht zu reinigende Oberfläche aufweisen, die frei von scharfen Innenecken ist.

Varicor Tafelware weiß mit Materialstärke 12 mm entspricht den Vorgaben der DIN 4102-B1 Schwerentflammbarkeit und verfügt über ein offizielles  "Allgemeines bauaufsichtliches Prüfzeugnis".


ZUR PRODUKTÜBERSICHT

Pollecker Finoflex GmbH
Daniel-Eckhardt-Str. 42 | 45356 Essen | Tel: 0201 - 8 33 86 20 | Fax: 0201 - 8 34 53 20 | info@mineralwerkstoff.de

 

Varicor Logo
Pollecker Finoflex GmbH
Tel: 0201 - 8 33 86 20
Fax: 0201 - 8 34 53 20
E-Mail:info@mineralwerkstoff.de